
WERKEN ES UNA EMPRESA
DE SERVICIOS DE INGENIERÍA EN LOS EDIFICIOS
Proyectos integrales
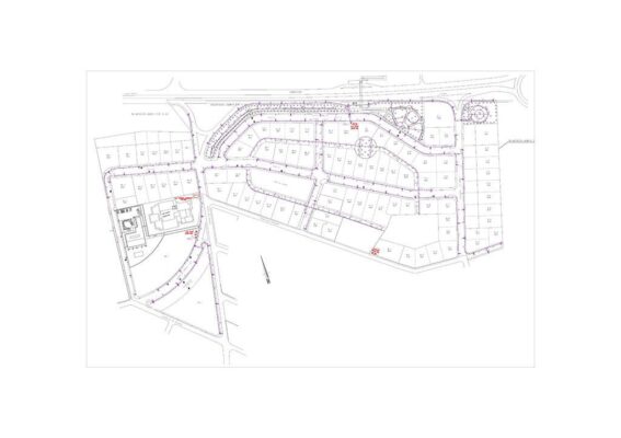
Desarrollamos proyectos integrales de establecimientos y gestionamos todo el proceso, desde los estudios previos de viabilidad hasta la entrega del establecimiento en funcionamiento y legalizado. Llevamos la dirección de ejecución de la obra.
Instalaciones
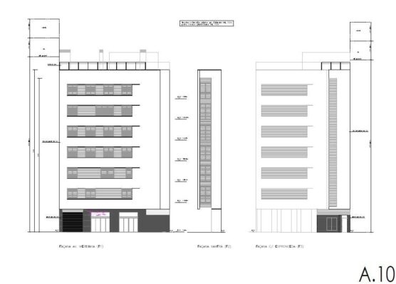
Damos servicio a arquitectos en la elaboración de proyectos.
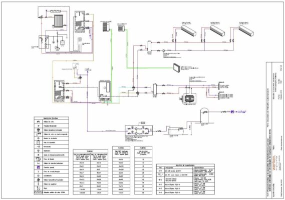
Diseñamos las instalaciones con un alto nivel de calidad.
También hacemos certificaciones energéticas y auditorías de instalaciones.
Legalizaciones
Hacemos proyectos de legalización de instalaciones,
proyectos para licencias de obras y de actividad.
Gestionamos y tramitamos íntegramente los expedientes administrativos.
Y nuestros colaboradores:
Disponemos de un equipo de colaboradores muy próximos y altamente especializados que nos permiten dar un servicio de alto nivel con agilidad.
































